SIEGBURG in Top Lage, Top 2 Zimmer-Erdgeschoss-Wohnung mit ca. 50 m² Wfl. Terrasse, Neubau.
Objektart
Adresse
Objektdaten
Informationen
Ausstattung
Details
Die sehr hochwertige barrierefreie 2 ZIimmer-Erdgeschoss-Wohnung (Erstbezug) mit Einbauküche für 1. Person befindet sich in ruhiger dennoch zentraler Lage von Siegburg.
Zentrumsnah und ruhig im Stadtteil 53721 Siegburg - Brückberg - in der Gartenstrasse) nur 8 Gehminuten zum Zentrum gelegen.
Geschäfte wie Aldi, LIDL, Rossmann, Edeka sind fußläufig ca. 300 m entfernt.
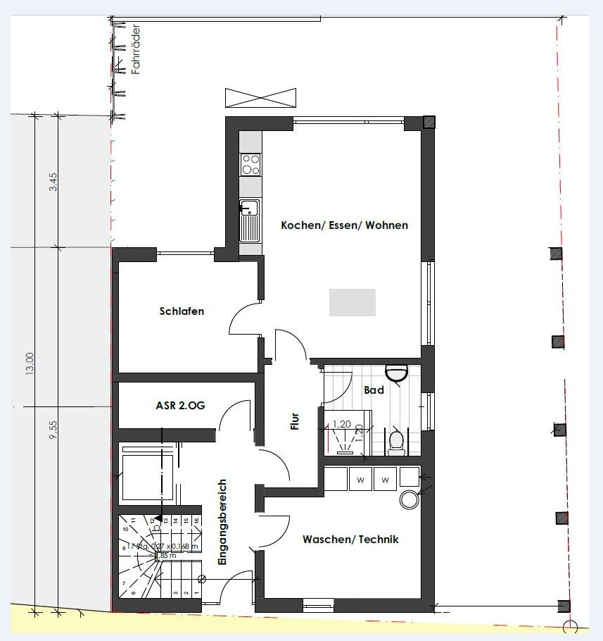
Die architektonisch sehr ansprechende ca. 49 m² große 2 ZI Wohnung befindet sich im Erdgeschoss eines gepflegten 3-Familienhauses,
Bodentiefe Fensterelemente schaffen eine helle Wohnatmosphäre. Die mit Fußbodenheizung ausgestatteten Räume der Wohnung sind an der Rückseite des Hauses gelegen und dadurch sehr ruhig.
Das Schlafzimmer ist ebenso wie der Flur und das barrierefreie Bad mit Tageslichtfenster und Dusche 1,15m² großzügig bemessen.
Die Einbauküche ist fester Bestandteil der Wohnung und wird gegen einen weiteren Mietanteil von 30,00 Euro / Monat angeboten.
Die Wohnung verfügt über SAT-Antenne, EDV Verkabelung und einen hohen Standard der Elektroinstallation. Haustiere sind nicht gestattet.
Ausreichend Parkraum befindet sich unmittelbar vor dem Haus.
Fertigstellung August 2019, Bezugsfertig 1.9.2019
Befeuerung: Wärmepumpe (Strom) mit Gas kombiniert
Aufteilung:
die Wohnung besteht aus einer offenen und sehr hellen Wohnküche, Flur/Diele, einem Schlafzimmer.
Die Wohnküche ist mit einer neuen Kücheneinbauzeile ausgestattet. Das Bad mit barrierefreier Dusche 1,15 m² sowie Tageslichtfenster.
Kaltmiete: 490,00 Euro
Nebenkosten: erwartete NK-Vorauszhalung 160,00 Euro mtl. inkl. aller NK zzgl. Strom
Küche:
die mtl. Miete / Abschlag für die Nutzung beträgt 30,00 Euro (Küchennutzung).
Die Heizkosten werden über Wärmemengenzähler ermittelt.
Zuammenfassung / Miete:
490,00 Euro + 30,00 Euro (Küchennutzung) = 520,00 Euro + NK-Vorausuahlungen + Strom
Innenbilder sind aufgrund des Baufortschrittes nur bedingt verfügbar. Das Bauvorhaben befindet sich in der finalen Bauphase, Tapeten und Malerarbeiten werden aktuell ausgeführt, Bodenbeläge (Laminat) werden im Juli 2019 fertig gestellt.
Die Wohnung verfügt über SAT Anschluss und moderne Netzverkabelung.
Fenster / Türen:
Kunstoffenster mit Isolierverglasung / elektrische Rollläden
Weiteres Ausstattungsmerkmale:
Bad: hell gefliest
Einbauküche
Das Objekt liegt in einer schönen Wohnlage in 53721 Siegburg-Zentrum / Ortsteil, Brückberg. Ruhige Toplage; das Haus befindet sich wie zuvor bereits erwähnt umgeben von Naturgärten.
Geschäfte für Güter des täglichen Bedarfs sind in der unmittelbaren Nähe und fußläufig (ca. 5 min. bis zur Kaiserstrasse) im Zentrum der Kreisstadt Siegburg reichlich vorhanden und erreichbar.
Das Zentrum ist fußläufig in wenigen Minuten zu erreichen.
Die Infrastruktur sowie die Lage dieses Hauses ist fast nicht zu übertreffen. Bis zum Zentrum - Marktplatz - sind es ca. 8 Gehminuten.
Sämtliche Schulformen, Frei- und Hallenbad, Kindergärten sowie Einkaufs- und Sportzentren, Arztpraxen und Apotheken sind ebenfalls in Siegburg und in der näheren Umgebung (wie z.B. auch in Sankt Augustin) vorhanden.
Auch alle Behörden, öffentlichen Verkehrsträger - wie Busbahnhof, Stadtbahn nach Bonn, deutsche Bahn, Geschäfte einschl. Kaufhaus, Restaurants, Cafés, Ärzte aller Fachrichtungen sind in höchstens 10-15 Fußminuten erreichbar.
Autobahnanschluss:
in ca. 2,5 km Entfernung zur A 560 / A 3; Entfernung nach Köln ca. 30 km, Entfernung nach Bonn über die B 560 / A 59 ca.15 km.
Öffentliche Verkehrsanbindung:
die öffentliche Verkehrsanbindung ist sehr gut. Per Stadtbus erreicht man das Zentrum bzw. den Bahnhof und ICE-Halt Siegburg sowie die Stadt Troisdorf.
Ebenso die Straßenbahnhaltestelle (im UG des Bahnhofs) Richtung St. Augustin / Bonn. Seit Juni 2004 fährt die S-Bahn über Troisdorf zum Airport Köln / Bonn.
Objektbilder:
weitere Bilder und ausführliche Objektinformationen sehen Sie hier unter:
www.enders-immobilien.de/Eaivmccagf
Energieausweis:
ein Energieausweis nach EnEV ist in vorhanden.
Kaution:
im Falle der Anmietung zahlt der Mieter eine Kaution in Höhe von 3 Monatskaltmieten an den Vermieter.
Haftungsausschluss:
das Exposé wurde anhand der Angaben und Unterlagen des Vermieters erstellt.
Eine Gewähr über die Vollständigkeit und Richtigkeit dieser Angaben können wir somit nicht übernehmen.
Ferner bleibt uns eine Zwischenvermietung vorbehalten.
ENDERS IMMOBILIEN (0 22 41) 39 82 -0
Alte Heerstrasse 39, 53757 Sankt Augustin
Bereitschaftsnummer: 0 178 - 9 836 936
Ansprechpartner
Telefax: 0 22 41 - 39 82 - 39
Mobil: 0178 - 9 836 936
info@enders-immobilien.de
Energieausweis (Bedarfsausweis)
29 kWh / (m²*a) Endenergiebedarf
29 kWh / (m²*a) Endenergiebedarf
29 kWh / (m²*a) Endenergiebedarf
Weitere Informationen
| Wesentlicher Energieträger | GAS |
| Energieausweis gültig bis | 2029-05-09 |
| Energieausweis Jahrgang | ab dem 1.5.2014 |
| Energieverbrauch für Warmwasser | enthalten |
| Energieausweis Werteklasse | A+ |
| Energieausweis Baujahr | 2018 |
| Heizung | Zentralheizung |
| Befeuerung | Gas, Luft-/Wasser-Wärmepumpe |
